>>> Der Ingenieur-Planer 60 J.
.
Entwickler
Denker Ingenieur
Architektur-Planer
Endlager-Planer
Industrie-Geologe
Physiker
Industrie Meister
Industrie-Kapitän
.
Co-Stadtbaurat
Projekt-Manager
Hauptbahnhof
Brücken
Grundstücke
Strassenbau
Wald-Wirtschaft
.
Drehbuch Autor
Licht und Ton
Kameras
Casting
Regie
Produktion
.
Entwicklung von Gemeinden
und Flächen, auch Großstädte
.
CDU Grüner Sozial-Reformer
Konstruktiver Bürgerrechtler
Technischer Autor
Bauplaner Stahlbau, Mauer-
werksbau, Beton, Holzbau
Investigativ-Journalist
Analyst – Spin Doctor
Wissens-Management
Internet Pulizistik
.
Endlager ist Bundesweit
Endlager ist auch Weltweit
Hagen ist kommunal
International – Schweiz,
Bhutan, Samara, USA
.
Christ, Buddhist, Moslem, Schreiber
Anthropologe, Wissenschaftler
Messtechniker CAD Zeichner
.
Info-Grafiker, Texter, bildender
Künstler, Maler Digital Artist
.
Casing Drilling Geothermie
Schachtbau – Gross-Loch-Bohren
Planung von Weltrekorden
.
Endlager-Behälterkonstruktion
.
Nuklear-Technik
Friedens-Verträge
.
Wehrtechnik Panzerbau
Notwendige Bauten
Wohnungsbau
Luxuswohnungsbau
Chalets, Villen, Schlösser
Gewerbebau
Industriebau
Tunnel-Planungen
Mining / Bergbau
Verfahrenstechnik
Bohrtechniken


Zur Zeit sind einige der oben genannten Themen in Bewegung


Bearbeitung echter Bau-Probleme und notleidender Bau-Themen
Lösungen für Menschheits-Probleme
Ewiges Studium Generale

Volker Goebel


Dipl.-Ing. Architektur

DBHD GDF INSTITUTE

ca. 15.000 Fachleute im internationalen Experten-Netzwerk


Goebel erstellt Planung baulicher Lösungsansätze für Themen

die öffentliche Aufgaben und öffentliche Mittel beinhalten.


Wir sind auch Prüfer und Revisoren einzelner Abteilungen.

Erneuerungs-Planungen für die öffentliche Hand – live und

öffentlich erarbeitet und fortgesetzt.

 

 

 

 

 

 

 

 

 

 

 

 

 

 

 

 

 

 

 

es kommen auch immer mehr Bebauungs-Pläne für die öffentliche Hand ins Portfolio

 

 

 

 

 

 

 

 

 

 

 

 

 

 

 

 

 

 

Stellen-Gesuch Stand 15.05.2023 - - - Job Application 15.05.2023 - (diese Seite wird so um die 14 Jahre alt sein)

 

Bewerbungs-Unterlagen / vollständiger Satz mit Lebenlauf, Diplom-Zeugnis, Arbeitszeugnissen und Arbeitsproben

Architektur-Planung... fine architecture planning - zeichnender, planender Architekt, Projektleiter und Kalkulator

 

 

 

 

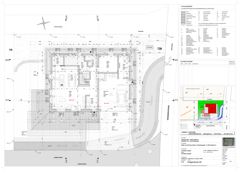
Ausführungsplanung und stellv. Projekt- und Bauleitung gemacht. Die Gebäude in Dallenwil sehen wirklich genau so aus wie in diesem Vorschaubild - grosser Dank an die Bauleute ...

 

 

 

 

 

 

 

 

 

 

 

 

Mein Vor-leben als Zeichner, Planer, Architekt, Ingenieur - Leitender in der Architektur verleugne ich nicht 

 

Dort entstand meine Haltung, Kompetenz, Erfahrung, Internationalität >>> Hochbau, Tiefstbau, B-Pläne ...

 

 

 

 

 

 

 

 

 

Sehr geehrte Architekten / Projekt-Steuerer und Investoren,

 

Die Endlager-Planung DBHD ist endlich vollständig und belastbar.

Ich gehe definitiv wieder in die Hochbau-Architektur - niemand

sollte auf Endlager warten - Super Entwurf - aber das dauert ewig.

 

Davor als Angestellter 7 Jahre in der Schweiz an 79 Bauvorhaben

erfolgreich gearbeitet. - VERFÜGBAR, bitte stellen Sie mich ein !

Dipl.-Ing, ArchiCAD, Zeichnender. V. Goebel info@ing-goebel.com

 

Ja, - ich bin 58 zig - gerade deshalb bin ich auf der Höhe meiner

meiner Zeichner - Fähigkeiten - in Top-Form, scharf & effizient.

Denn bei CAD Planern kommt es doch sehr auf die Erfahrung an !

 

Architekt FH CH , Kalkulator, Dipl.-Ing., Bauleiter

Entwurfs- und Ausführungsplanung, Projekt-Leiter

Zeichnet seit 24 Jahren im BIM 2D/3D ArchiCAD 25

Bezahlbar - zeitnah - kompetent in 1:100 und 1:50

Fachmann Multifunktionsgebäude im Wohnungsbau

Strasse, Produktions-Orte, Fachplaner-Koordination

 

Alle Bauanträge die ich für Zürich, Zermatt, Stans und Brunnen

vorbereitet habe wurden vom Büroinhaber unterschrieben und

von der genehmigenden Behörde auch problemlos genehmigt !

 

Nach 9 J. Baurecht DE und 7 Jahren Baurecht Schweiz kann ich

sagen: Ich kenne die Baugesetze und lese immer noch gern darin.

Auch Brandschutz-Planung & Gestaltungspläne kann ich ganz gut.

Musste aber SIA, LBO, VOB, HOAI und barrieref. Bauen neu lesen.

 

Erfreuliche künstlerische Gestaltungs-Qualität (Abschl. FH Köln)

Sehr hohe planerische Darstellungs-Qualität (ArchiCAD 03 - 25)

Sehr hohe ingenieurtechnische Konstruktions-Qual. (Dipl.-Ing.)

 

Keine Haftungsprobleme durch die Ausführungsplangung bisher.

Ich erhalte das BIM auch im 1:50 und koordiniere die Fachplaner

gut. - Ja, - Ausführungsplanung kann ich mittlerweile recht gut.

 

Ich biete Ihnen nicht nur routinierte Entwurfs- und Ausführungs-

planung in Architektur sondern auch konstruktiven Ingenieurbau.

Routinierter Umgang mit dem ArchiCAD Umbauwerkzeug 2D / 3D

 

Wohngebäude, Anbauten, Umbauten, Bürogebäude, Gewerbebau,

Industriebau, Endlager HLW und LLW und auch etwas Wasserbau.

Immer mehr in der Projekt-Leitung tätig in den letzten Jahren ...

 

Holzbau, jeder 3te Neubau in der Schweiz ist ein Holzbau, der mit

kleinen Bauteilen aus Metall zusammengehalten wird. Es geht jetzt

darum "sicher" mehr als 3 Geschosse hoch bauen zu lernen mit mir.

 

Architektur ist arbeiten am Glück. MfH Wohnträume, Behausungen

schaffen, bei die Lüt sein, Gewerbebau, Geldanlagen ermöglichen,

die Zivilisation der Menschen weiterplanen, sowie das Notwendige.

 

Wenn es um öffentliche Bauten und öffentliches Geld geht kann

ich es 100 % öffentlich erarbeiten. - Private Bauherren können

sich meiner Diskretion allerdings völlig sicher sein. Unterschied.

 

Die Chefs sagen ich sei gut und sehr " speditiv " - das liegt an der

CAD Software ArchiCAD 25 und einer rountinierten Arbeitsweise

im BIM. Neu 1:50 aus dem BIM möglich, auch mit Umbauwerkzeug.

 

Kleines Gebäude bisher 43 m2 - Grösstes Gebäude bisher 94.092 m2

Kleinster Baupreis 18.000 USD - Grösster Baupreis bisher 14,3 Mrd. EUR

Pragmatische und kundenorientiere Planungen für div. Klimazonen !

 

Wohungsbau-Grundrisse, Strahlenschutz-Planung für Krankenhäuser,

Strahlenschutz-Planungen für Endlager, Hochregal-Lager-Logistik,

RFID Logistik, automatische Man-Up Systeme, Beschuss-Sicherheit

 

Mein Hobby ist die Endlager-Planung für hoch radioaktive Reststoffe.

Es ist seit Jahren mein Hobby und das wird es auch immer sein. Für

die Berufsausübung als Architekt / Dipl.-Ing. ist das nicht hinderlich.

 

Machen Sie Ihren 1:100, 1:50 Architekten, Projekt-Ing. aus mir.

Bisher war ich in der Schweiz immer der Interims-Mann um die

Bedarfs-Spitzen abzudecken. Eine Dauer-Stelle ist willkommen.

 

Ja, - ich möchte sicher noch 9 Jahre arbeiten - und ja - ich bin alt.

Als Architekt CH, Künstler und Ingenieur bin ich 100 % Avantgarde !

Planungs-Fachmann, der auch die Routineaufgaben gut erarbeitet.

 

 

Wünsche Ihnen einen schönen und erfolgreichen Tag ... Bis bald.

 

Mit freundlichen Grüssen

 

Volker Goebel

 

Dipl.-Ing. Arch.

 

 

15.05.2023

 

 

 

 

 

 

 

In der bezahlten Wettbewerbs-Architektur setzen wir jetzt Renderings und Filme ein

 

https://www.ing-goebel.de/adipositas-reha-gut-n-h/

 

 

 

 

z. Z. Wettbewerbs-Entwurf Berufsschule Bau Zürich BBZ Wettbewerbs-Beitrag (Dez.-Jan. 2018)

 

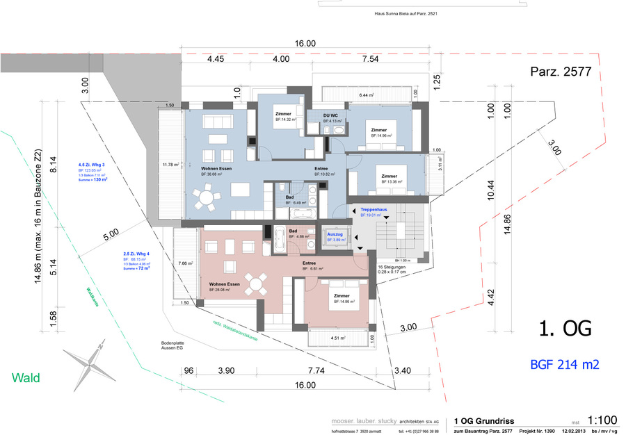
Plansatz_Haus_F_Tägerwilen.pdf
PDF-Dokument [5.8 MB]
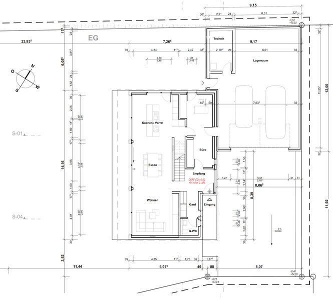
Planung_MFH_Uttwill.pdf
PDF-Dokument [5.4 MB]
Lebenslauf CV Volker Goebel Dipl.-Ing. Arch. - hier Lebenslauf - hier der Lebenslauf - CV
CV_Volker Goebel Lebenslauf 27.03.2026.p[...]
PDF-Dokument [41.3 KB]
Plansatz_Haus_F_Tägerwilen.pdf
PDF-Dokument [5.8 MB]
Planung_MFH_Uttwill.pdf
PDF-Dokument [5.4 MB]

 

 

 

 

 

 

 

 

 

 

 

 

 

 

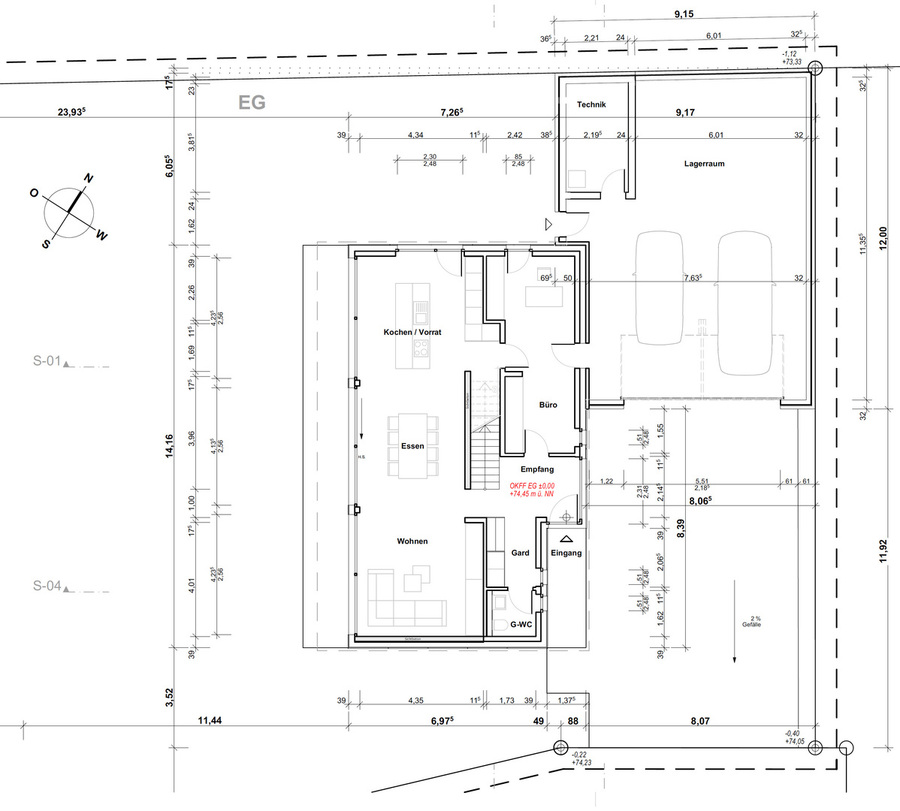
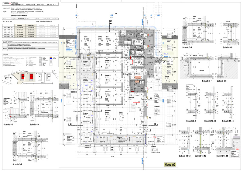
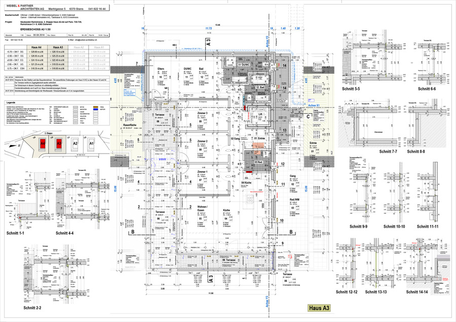
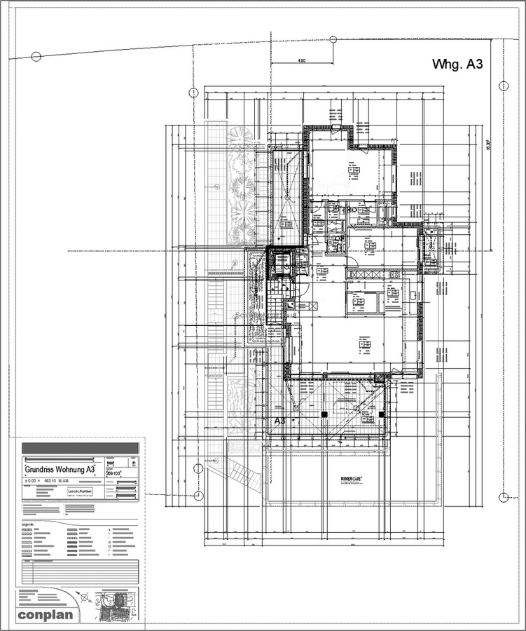
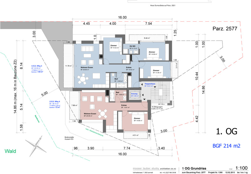
180 Stück techn. Zeichnungen und Vorschaubilder aus der Bau-Planung.

 

Geplant und gezeichnet habe ich das selbst - aber Sie sollten wissen, das

Arch. Goebel immer Bestandteil eines Architektur-Planungs-Team war/ist

 

Das ist auch nur ein kleiner Ausschnitt von Arbeiten die ich zeigen darf ...

also : Keine Namen, keine Flurstücknummern, keine Bauherrenadressen

Da sind viele Projektstudien dabei wo ich neue Typologien getestet habe.

 

gehen Sie mal auf Bildschirmfüllend und klicken Sie sich durch - ca. 1 min

 

Fuehrerschein_VG_Seite_1.pdf
PDF-Dokument [3.7 MB]
Fuehrerschein_VG_Seite_2.pdf
PDF-Dokument [3.0 MB]
Aufenthaltsbewilligung B gültig für die ganze Schweiz bis 26.03.2022 EU/EFTA Bürger Volker Goebel Architekt
B-Ausweis Schweiz
Arbeitserlaubnis_B_Aufenthalter_Volker_G[...]
PDF-Dokument [5.3 MB]
AHV_Karte_VG.jpg
JPG-Datei [235.2 KB]
Bank-Verb_VG.jpg
JPG-Datei [150.0 KB]
Download
Sterbeurkunde
Neuer Datei-Download

 

this is something i actually work on in Feb. / March  2018

 

https://www.facebook.com/ArchiMcGoebel/videos/2046939262254166/

 

 

 

 

 

 

 

 

 

 

 

 

Hier das grosse eigene Planungsvorhaben (Eines von 4 Endlagern)

auch ein EU Wettbewerb den man zu Unrecht nicht gewonnen hat

hinterlässt Spuren. (Die IAEA hat allerdings höchstes Lob erteilt !)

 

 

 

oben: Arbeitsprobe Projektentwicklung grössere Bauvorhaben DE/CH

 

 

 

 

 

 

 

 

 

 

 

 

 

unten : Arbeitsprobe Projektentwicklung 3 te Welt Länder Hilfe Afrika

 

Bitte spenden Sie Geld an die Starlight Family Waisenhaus-Schule in 

Kiboga Uganda Afrika - Das Geld kommt wirklich an und wird sinnvoll

verwendet. - Ein Bekannter war kürzlich vor Ort, er fördert diese Ein-

richtung seit über 17 Jahren und war voller Lob für die gute Leistung.

Wir haben ein preiswertes Gebäude für 10 Kinder und 2 Betreuer ge-

zeichnet für das wir jetzt Geld sammeln. Hilfe zur Selbsthilfe vor Ort.

 

 

----Dieses Gruppen-Haus kostet komplett nur 18.000 US Dollar. Wir haben

----knapp über 2/3 der Bausumme bereits gesammelt. - Baubeginn Anfang

----Oktober durch das MGKB Team in Uganda. Die Waisenhaus-Schule der

----Starlight Kids freut sich sehr und ist voller Hoffnung ... Ing. V. Goebel

 

----Natürlich nehmen wir noch bis zu 6.000 SFr Spenden entgegen um das

----Dach und den Wasser-Behälter auch noch bauen zu können - BITTE ...

----

 

 

 

 

Main Start-Sponsors of Group House for Starlight Orphan School Kiboga

 

- David P. Amrein / GF Dr. Clark Zentrum / Switzerland & US Montana FB

- Volker Goebel / the Group House Architect, Dipl.-Ing. / Switzerland FB

- Schubert-Verlag, Leipzig / Germany FB

- Marcel A. / Brunnen / Switzerland

 

we will be very happy to welcome more Sponsors in the group please ...

 

David P. Amrein, Volker Goebel Architect Dipl.-Ing., Dr. Frank Schubert David, Volker, Schubert Verlag, sponsors Group House Building Starlight Kids Kiboga Uganda

 

 

 

 

um nachhaltiger zu werden kann man auch 22 Gruppen-Häuser im

Rahmen des "Group House VILLAGE" anordnen, und mit Rent/Buy

Verträgen in Zusammenarbeit mit der Centenary Bank bauen ...

das ist dann nicht mehr nur Waisenhaus-Hilfe sondern Baufirma.

 

Group House Starlight_Village.pdf
PDF-Dokument [20.8 MB]

 

-Entwurf eines kl. Dorfes für eine Hochebene in einer afrikanischen Klimazone

 

 

und es kam noch besser - das Family House fand sehr grosses Interesse :

Drei Ingeniere aus Uganda gründen gerade eine Firma, um 50.000 Stück

des Family Houses (mit Bad und WC) im Wakiso District zu bauen ... YES

 

 

 

10.11.2017 - the MGKB Ltd. received

first Building Permit for Group House

for Starlight Elemantary School - YES

 

 

 

 

> recently i had an education on LUMION by Mr. Schroer / Cycot GmbH
for further information please see : http://www.lumion3d.de/uebersicht

Das ist ein Echtzeit Renderer von Visualisierungen und Vorschau Filmen

 

kleinstes Bauvorhaben bisher : Umbau Stadl zu Ferienhaus 24 TSFr BS 

das Mittelfeld sind die zahlreichen Mehrfamilienhäuser, grösstes Paket

bisher 36 Wohnungen in einem Bauvorhaben - sehr viele MfH gemacht

immer wieder mal Tunnel, Brücken, Gewerbebau, Logistikhalle etc. etc.

grösstes Bauvorhaben bisher : GTKW Endlager, 16.3 Mrd. EUR (kalkul.)

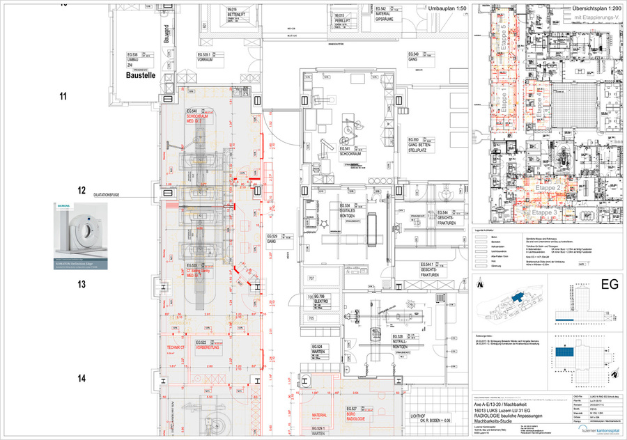
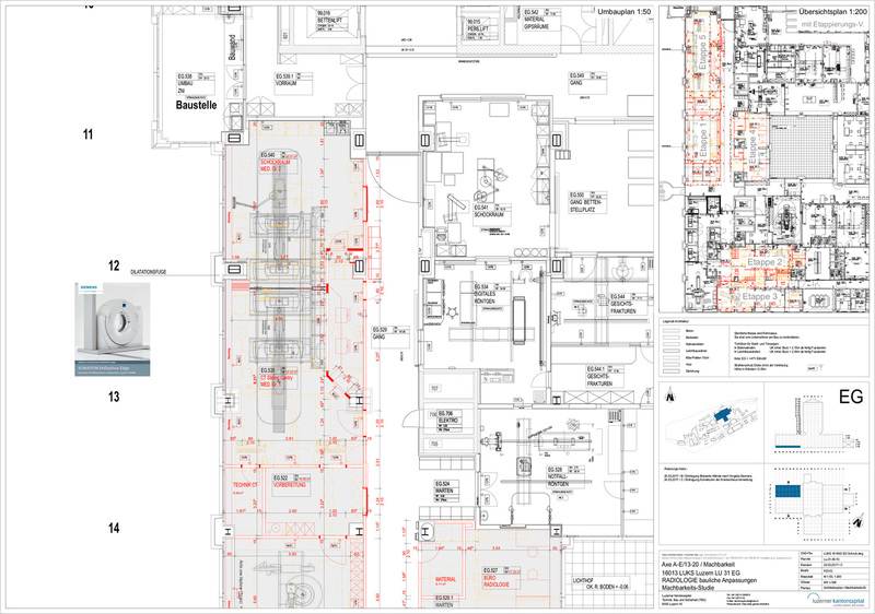
Die Umplanung der Radiologie 1:50 für das LUKs wurde angenommen.

Arbeits-Motto : " Alle berechtigten Interessen zum Ausgleich bringen "

Arbeits-Stil : Pragmatisch, Logisch, Kundenorientiert und Bezahlbar ...

 

 

 

 

ArchiCAD 20 ist sehr schnell & intuitiv, stellen Sie auf ArchiCAD 20 um.

Leitet Ansichten, Schnitte, Perspektiven automatisch aus dem BIM ab.

1:50 direkt aus dem BIM geht in ArchiCAD 20 auch schon sehr gut. Mit

dem Umbauwerkzeug sind Schwarz, Rot, Gelb Baupläne schnell möglich.

Gern helfe ich ein kleines Büro auf BIM umzustellen. (22 J. Erfahrung) 

Ich arbeite gerne (oft auch WE wenn nötig) und brauche eine STELLE

 

Sie müssen auch keine teure Software kaufen - ArchiCAD Dongle VG

ArchiCAD 20 war ein Sprung in Sachen Produktivität und Präzision !

 

 

 

 

 

Typisch Architekt, typisch Schütze, typisch vg ... unverzichtbarer intelligenter Innovator - aber auch ein Grenzgänger - arbeitet gut mit Freunden ...

 

 

Volker Goebel Architekt Dipl.-Ing. Paris aktuelles Foto

 

 

der Bedarf an planenden Architekten / Fachkräften ist offensichtlich :

 

>>> https://www.swiss-architects.com/de/stellenanzeigen oder z. B.

 

http://www.sia.ch/de/dienstleistungen/sia-service/personalboerse/stellenboerse/

 

http://www.jobs.ch/de/stellenangebote/?industry=2&term=architekt

 

https://architekten-jobs.ch/ (neue Plattform der "Stellenvermittler")

 

https://www.architektura.ethz.ch/website/praktikum-jobs/ Stellen CH

für Architektur-Studenten aber neuerdings auch für Berufserfahrene

 

http://www.baunetz.de/stellenmarkt/index.html?wt_mc=nljobs.2017-06-07.stellenmarkt.index (der Architektur-Stellenmarkt in Deutschland)

 

pro Monat zeichne ich Bau-Volumen von bis zu 8 - 25 Mio. Franken

"Ein Architekt der eine Stelle hat ist das beste Konjunkturprogramm" 

 

 

 

 

 

for architecture films and rendering services based on ArchiCAD .pla data please contact Eugene Gorun from http://raycastrum.com/en/

 

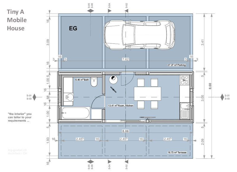
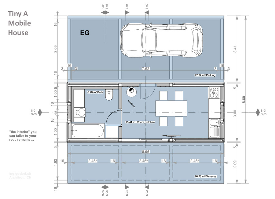
typisch die Dütschen - erfinden ein "Kleinst-Haus" von nur 43 qm BGF um

es dann wie ein Auto in Serie zu fertigen. Das Tiny Mobile House hat einen

Rahmen von nur 1.400 kg und wird in CH per Hubschrauber ausgeliefert !

In CH ein Nischenprodukt, das aber noch viele Kleinst-Grundstücke nutzt.

In Deutschland aber fehlen 1 Mio. Wohnungen - da besteht viel Bedarf.

 

 

 

 

 

 

 

 

 

für das Pharma Business Center Switzerland an der A2 wird noch ein 50 % Anker Käufer gesucht

 

n trotz schwieriger Zugänglichkeit in 2016 gebaut. Das sind sind dann in Summe 6 erfolgreiche Entwürfe aus 2,5 Jahren in Zermatt Anschliessend folgte im Wesentlichen viel Ausführungsplanung in der Zentral-Schweiz Grüezi - die beiden Chalet MFH wurden trotz schwieriger Zugänglichkeit in 2016/17 gebaut. Das sind sind dann in Summe 6 erfolgreiche, gebaute Entwürfe aus 2,5 Jahren in Zermatt ! Anschliessend folgte viel Ausführungsplanung 1:50 in der Zentral-Schweiz.

Kontakt

 

0157 5466 24 34 DE Tel

 

info@ing-goebel.com

 

Volker Goebel

 

Dipl.-Ing. Arch.

 

 

 

 

 

schöne, aber veraltete Besuchskarte - nur zur Erinnerung

 

-

Druckversion | Sitemap
Volker Goebel / Dipl.-Ing. / Tel +49 157 546 624 34 DE / info@ing-goebel.com / archi.goebel@gmail.com - Konnte am 08.03.2025 und 14.04.2025 nach 14 Jahren !!! eine vollständige Endlager-Planung nachweisen.