bei Bremervörde >>> bei Beverstedt - sehr höffig als Standort für Endlager für hoch radioaktive Reststoffe

 

 

Nehmt Eurer Geologie-Schicksal an. Gründet die HLW Endlager bei Beverstedt AG

 

 

Es gibt nun ein Angebot für eine Probebohrung bei Beverstedt. Das grösste

 

Deutsche Tief-Bohr-Unternehmen D. nennt 28 bis 32 Mio. EUR - Stand 2023

 

Programm : Sedimente - Steinsalz - bis deutlich ins Rotliegenee - "Erdgas ? "

 

Video-Termin war am 25.09.2023 - Angebot um 13:43 - vom CEO Persönlich

 

Erbitten Rats-Beschluss Bev. für Probebohrung mit Kompensations-Summe

 

 

 

 

 

 

In dieser Region gibt es aus Ingenieur-Geologischer Sicht die Besten Diapire / Steinsalz-Formationen

 

Wir nennen diese Region " DBHD Land " - Massive Steinsalz-Formationen von Tonstein umgeben ...

 

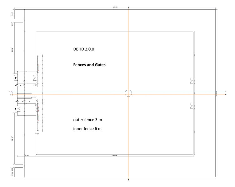
DBHD 2.0.0 Endlager Standort Vorschlag : Plateau Grosser Lienkamp, in 27616 Beverstedt, in DE

 

 

 

 

 

 

 

 

Herr Guido Dieckman - Bürgermeister Beverstedt

 

 

 

Es wurde ein Telefon-Termin vereinbart

 

Danke an Frau Brandt / Büroleiterin BM

 

Termin : Donnerstag 13.10.2022 um 08:30

 

Ing. Goebel ruft Tel. Nr. 04747 181-10 an

 

 

 

Sie als Beverstedter Bürger können Ihrem Bürgermeister schreiben.

 

Sie als DER Landbesitzer können Ihrem Bürgermeister schreiben.

 

Sie als Umwelt-Schutz Gruppe können Ihren BM anschreiben.

 

Das BASE Berlin wird möglicherweise auch etwas schreiben.

 

 

 

 

Moin - Liebe Beverstedter

 

Wollt Ihr die Ansiedlung eines DBHD Endlagers ?

 

Wollt Ihr die üppigen Anlieger-Kompensationen ?

 

Haben Sie eine Vorstellung von den Gefahren, die

 

die Castor-Mengen-Transporte über 4 Jahrzehnte

 

für Ihre schöne Region mit sich bringen ? 

 

 

 

 

Es handelt sich um ein allgemeines Erörterungs-

 

Gespräch im Vorfeld. - Das sogenannte "Einsatz-

 

Reserve KKW Gesetz" ist zur Zeit in MdB Beratung.

 

 

 

Ein "Entsorgungs-Vorsorge-Nachweis" ist laut Atom-Gesetz

 

eine formale Voraussetzung für den Betrieb von KKW in DE.

 

 

 

Eine Gemeinde-Versammlung und ein Rats-Beschluss

 

können den Weg zu einer sehr teuren Probe-Bohrung

 

frei machen - Vor Bohr-Beginn erste Kompensationen.

 

 

So sieht der Endlager-Planer Dipl.-Ing. Arch. Goebel das.

 

Gerne möchten wir wissen wie Beverstedt das sieht !?

 

 

 

 

Gesprächs-Verlauf 13.10.2022 - Ing. Goebel - Bürgermeister Dieckmann

 

wir haben 22 Minuten telefoniert - freundlicher, vorsichtiger Bürger-

 

meister - Sieht keine Mehrheiten für die Endlager-Ansiedlung in der

 

Gemeinde Beverstedt - Wir haben uns mal etwas kennengelernt. Moin.

 

 

 

 

 

 

 

 

 

 

Brief BASE Atomaufsicht Berlin an die Ge[...]
Portable Network Image Format [157.9 KB]

 

 

 

 


>>> Hallo - Sehr geehrte Frau Ministerin Behrens,

Danke sehr für LinkedIN - Ist mir/uns eine Ehre !

 

Innen-Ministerin des Bundeslandes Niedersachsen

Vor dem Hintergrund, was die DBE BGE GmbH
seit 50 Jahren in Niedersachsen so falsches tut

möchte ich - Ing. Goebel - Dipl.-Ing. Architektur
Endlager-Planer seit 14 J. und Branchen-Kenner

folgende Lektüre empfehlen : " ing-goebel.de "
" Endlager für Politiker " - ist zur Zeit Startseite

Für Rückfragen stehen wir Ihnen gerne zur Verfügung.

Mit besten Grüssen aus Hagen nach Bremen ? Hannover

Sind Sie gerade in Bremen ? Bremer-Voerde - Bei Beverstedt ?

Volker Goebel und die Physiker und Ingenieure

.
ausserdem liegt dem Landtag die Petition 01236/11/19 vor.
.
Sie sind eine erfahrene sehr Politikerin ! - Wissenschaft,

Wirtschaft und Familie im Lebenslauf - das alles kommt

auch in DBHD Endlager vor ! Sie machen das sicher gut

und wie gesagt - Rückfragen sind herzlich willkommen.

Frau Ministerin Behrens. - WooW - Ministerin ist vor Ort.

 

 

 

 

 

 

 

 

 

 

 

 

 

 

 

 

Endlich eine "vernünftige Aufstellung" von der Bahntrasse

 

zur Castor-Blei-Verguss-Halle, zum DBHD 2.0.0 Endlager

 

Den Haupt-Ort Beverstedt weitestgehend raus-halten ...

 

Aber auch nördlich von B. gibt es vereinzelte Gebäude.

 

 

 

Bahn-Gleise sind für 90 Tonnen Waggons gemacht. - Die

 

Castoren sind mit bis zu 127 Tonnen schon harter Stress

 

für die DB Gleis-Anlagen. Deshalb letzte Meter auf einer

 

speziell neu angelegten Schwer-Last-Strasse transportieren.

 

 

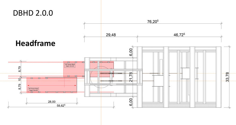
Alle Tages-Anlagen des Schacht-Bergwerkes werden

 

zurückgebaut werden. - Die Anlage wird sich nach

 

Norden hin ausdehnen wenn mehr als 1 Säule am

 

Standort-Beverstedt entsteht. - bis zu 40 Jahre !!!

 

 

Die Anlieger werden "stink-reich" werden ...

 

 

 

 

 

 

 

 

 

 

 

 

 

Geophysik Endlager bei Beverstedt DE - Temperaturen im Endlager - Sinken der Einlagerung bis auf das Rotliegend Geophysik Endlager bei Beverstedt DE - Temperaturen im Endlager - Sinken der Einlagerung bis auf das Rotliegend

 

 

 

 

>>> Entsorgungs-Vorsorge-Nachweis im Atomgesetz enthalten - Vorschlag : DBHD 2.0.0 HLW Endlager-Planung bei Beverstedt / Winner - erhältlich im Shop

 

https://www.ing-goebel.shop/shop/1x-DBHD-GDF-Rocksalt-License-Endlager-in-Steinsalz-Lizenz-funktioniert-mit-Sicherheit-p248567028

 

 

 

 

 

 

 

 

 

 

 

 

 

 

 

Kompensations-Karte-fuer-DBHD 3.0.3 Endlager-Standort-bei Beverstedt_Vorschlag_Ing_Goebel Kompensations-Karte-fuer-DBHD 3.0.3 Endlager-Standort-bei Beverstedt_Vorschlag_Ing_Goebel

 

 

 

 

 

 

 

 

 

 

 

 

 

 

 

 

 

 

 

 

 

Schauen Sie sich dieses massive Steinsalz an - und wie schön es in Tonstein eingepackt ist ...

 

 

 

Steinsalz und Salzgruss unter Bergdruck verbindet sich wieder form- und kraftschlüssig und gas-dicht - Verschluss für Endlager im Steinsalz nachgewiesen Steinsalz und Salzgruss unter Bergdruck verbindet sich wieder form- und kraftschlüssig und gas-dicht - Verschluss für Endlager im Steinsalz nachgewiesen

 

 

 

 

 

 

Wertvolle Salzgrus-Proben aus der Grube Sigmundshall , 06.12.2021

 
Seit mehreren Jahrzehnten untersucht die BGR die Zuverlässigkeit von Salz als dichte geotechnische Barriere für Endlager oder Untertagedeponien. Bislang konnte das zur Verfüllung von Hohlräumen unter der Erde eingesetzte feinkörnige Salzgestein, nur analysiert werden, wenn es im Labor künstlich kompaktiert wurde. Jetzt ist es gelungen, Material zu gewinnen, das in einem Bergwerk von langsam kriechenden Grubenwänden natürlich verdichtet wurde. In Zusammenarbeit mit dem Unternehmen K+S konnte die BGR in der Grube Sigmundshall in Bokeloh bei Wunstorf (Region Hannover) Salzgrus-Proben entnehmen, die aus einem Abbau stammen, der Ende der 1970er Jahre auf einer Gesamthöhe von 178 Metern mit dem feinkörnigen Salzgestein verfüllt worden war.
 

Bei den Proben handelt es sich um vollständige Bohrkerne aus dem versetzten Salzgrus. Erste Untersuchungen ergaben, dass das Material stark verdichtet ist und gut zusammenhält. Der Übergang zwischen dem gewachsenen Steinsalz und dem als Versatzmaterial eingebrachten Salzgrus ist trennscharf und stellt keine Schwächezone dar. „Dies ist ein vielversprechendes Indiz für die Flüssigkeitsdichtigkeit und die geomechanische Integrität von Salzgrus als geotechnische Barriere“, so BGR-Experte Dr. Kristoff Svensson. Unter anderem gilt Salzgestein als ein mögliches Wirtsgestein für ein atomares Endlager, wobei aktuelle und ehemalige Bergwerke wie Sigmundshall für diese Nutzung ausgeschlossen sind.
 

Die Bohrkerne sollen nun im Labor detailliert untersucht werden. Dabei soll bestimmt werden, welche Deformationsmechanismen im Versatz während der Kompaktion vorherrschend waren und inwieweit sich das Material aus dem Bergwerk von den zahlreichen Proben unterscheidet, die bislang im Labor künstlich erzeugt wurden. Svensson: „Proben mit einer solch langen Kompaktionszeit sind wissenschaftlich besonders wertvoll, weil sie im Labor nicht exakt nachgebildet werden können.“
 
 
 
https://www.bgr.bund.de/DE/Gemeinsames/Nachrichten/Aktuelles/2021/2021-12-06_wertvolle-salzgrus-proben-aus-der-grube-sigmundshall.html?nn=1542388
 
 
 
Damit ist Salzgruss als Verschluss-Material bestätigt - Genau so, wie es Ing. Goebel seit Jahren predigt. - Allerdings zeigt diese Probe auch, wie wichtig es ist das Salz für den Verschluss über Jahre sauber und trocken zu halten. Das ist aber in den oberirdischen Anlagen bereits geplant.
 
 
Die Bohr-Probe stammt aus etwa 720 Metern Tiefe - Salzbergwerk Sigmundshall - Sie können mit Herrn Dr. Kristoff Svensson telefonieren : 0049 511 643 2832 - oder schreiben Sie Ihm unter : kristoff.svensson@bgr.ed - Ich sprach mit einem relativ jungen, klugem Wissenschaftler, der sich der Bedeutung seiner Entdeckung noch gar nicht so richtig bewusst ist. Es war ein Team der Abt. 3 die den Mut hatte in Sigmundshall zu bohren - Ein GROSSES BRAVO an die BGR !!! - BRAVO
 
 
 
 
 
 
 
 
 
 
 

 

 

 

 

 

 

 

 

 

bei Bremervörde ist DBHD 2.0.0 und DBHD 2.0.3 gut möglich, weil

 

die geologischen Voraussetzungen dort im Steinsalz gegeben sind.

 

 

 

Allerdings ist das oberirdisch die Landschaft mit den meisten Mooren

 

in DE - DBHD hat ja eine grosse Grundplatte - Moore sind zu erhalten.

 

 

 

 

Es geht um einen Standort für DBHD Endlager - ca. 363 x 300 Meter

 

Standort muss nördlich von Beverstedt sein

 

 

 

 

und

 

 

 

Es geht um einen Standort für eine Verguss-Halle ca. 1.165 x 600 Meter

 

(der Standort der Verguss-Halle muss ohne Brücken zu erreichen sein.)

 

Der Standort muss NICHT auf einer Geologie sein. - Castor Transporte.

 

 

 

 

 

ALLE untiefen, horizontalen Bergwerke im Ruhrgebiet saufen ab - Grubenwasser - eine toxische Ewigkeitslast im Ruhrgebiet - die BGE schlägt aber immer untiefe, horizontale Bergwerke als Endlager vor !!
Das Grubenwasserkonzept der RAG- Gefährl[...]
PDF-Dokument [8.7 MB]

 

 

 

 

 

 

Der DBHD Standort 5 km nördlich von Beverstedt ist laut den Karten optimal. Dort Probebohrung !

 

Der Standort weiter nord-östlich, ist an der Strasse und nicht so nah am Dorf - Probebohrung ?

 

 

 

Kern-Bohrungen bis aufs Rotliegede sind teuer. Das können dort bis zu 8.500 Meter sein. Aber

 

Sedimente und Salz sind ja einfach zu bohren - zur Sicherheit 100 Meter ins feste Rotliegende

 

bohren bitte. - Ganz vernünftige Probe-Bohrung. - Alle Kerne sind zu säubern und auszulegen.

 

(Im Bereich des Steinsalzes kann möglicherweise auf jede Bohrspülung verzichtet werden.)

 

Der Standort wurde im Rahmen des Standort-Auswahl-Verfahrens als Teilgebiet BGE und als

 

höffiger Standort für DBHD identifiziert. Lernendes, wissenschaflich, technisches Verfahren.

 

Es wird nur tagsüber von 7 Uhr bis 19:00 Uhr gebohrt. Wir sind immer so nett und komplett

 

wie möglich. - Wir zahlen 2.500 EUR pro Kopf für Anlieger im 10 km Kreis. Pauschal - in bar.

 

Wir bohren nur auf Land, das wir für 3 J. vom Landeigentümer pachten konnten. Juristisch

 

braucht die Endlagerung keinen Ratsbeschluss - aber wenn man ca. 250 Mio. EUR vom Geld

 

der Stromkunden ausgibt, ist eine demokratische Legitimation über das Standort-Auswahl

 

Gesetz hinaus ganz herzlich willkommen. Diese Probebohrung wird sehr teuer !!! Möglicher-

 

weise bauen wir eine provisorische Schallschutzwand von ca. 30 Metern Höhe auf, um das

 

Dorf vor den Lärm-Emissionen zu schützen. Wir stellen auch 2 junge Männer aus dem Dorf

 

als Helfer und Mitarbeiter auf der Bohr-Baustelle ein. Es wird eine saubere Ackerfläche ohne

 

Bohr-Öl Verschmutzung zurückgegeben. - Jeden Samstag ist Tag der offenen Bohr-Baustelle.

 

 

 

 

 

 

 

 

 

 

 

 

 

 

 

 

 

 

 

 
 
 
 
 
 
 
 
 
 
 
 
 
 
 
 
 
 
 
 
Moin - Leserbrief von Frau Ehrenberg aus Beverstedt
 
 
 
 
Abete Ehrenberg <abeteberg@gmail.moc> hat am 21.09.2021 16:41 geschrieben:
 
 
Hallo Herr Goebel, - ich bin Beverstedterin. - Bitte um Info ob das diesen Samstag stattfinden wird ? Oder ist das schon vorbei  ? HIER KURSIEREN die dollsten Gerüchte... Aber bevor der Bund in ein feuchtes TORFBETT baut. - Hätte ich schon gerne mal mehr Infos zu Ihrer offensichtlich sicheren  Endlager-Variante, und wie aktuell die Situation ist. - Danke .- Ich verbleibe mit freundlichen Grüßen - Beate Ehrenberg.- Physiotherapeutin in Beverstedt.  
 
 
 
 
 
 

 

 

 

 

 

 

 

 

 

 

 

 

 

Redakteurin Frau Kikker von der Nordsee-Zeitung hat heute Ing. Goebel über 45 Minuten befragt.

 

 

Es ist zu erwarten, dass ein sachlicher Artikel in die Nordsee-Zeitung kommt. - Frau Kikker ist als

 

Journlistin sehr erfahren - Sie wird die Frage : Endlager bei Beverstedt ? - aus der Sicht des Cux-

 

land - der Region Bremervörde - sachlich beschreiben und kritisch hinterfragen.

 

 

 

 

 

 

 

 

 

https://www.norderlesen.de/heute/ist-beverstedt-das-perfekte-atommuell-endlager-67181.html?strAd=on

 

 

 

 

 

Inhaltlich geht es natürlich um die Super-Welt-Geologie bei Beverstedt

 

 

Die Stadt Beverstedt wird so weit wie nur möglich geschont werden !

 

 

 

 

 

 

 

 

 

 

 

 

Es macht keinen Sinn über die 50 jährige konzeptionelle Unfähigkeit der Institutionen zu berichten.

 

Wir kommen nur voran, indem wir die neue Gross-Loch-Bohrtechnik von Fa. Herrenknecht - und die

 

Möglichkeit einer wassergekühlten, und deshalb relevant tiefen Endlager-Schacht-Baustelle diskutieren. 

 

Wir brauchen ein lernendes Verfahren. Die ewige elegische Dummheit der Gestrigen ist uninteressant.

 

Wir brauchen eine andere Bauweise für Endlager - Asse, Morsleben und Konrad ertrinken im Wasser.

 

 

 

 

 

 

Agri-PV-Solar-Anlage-System-Skizze_Ing_G[...]
Archivdatei im ZIP Format [85.4 MB]

 

 

 

 

https://www.landeszeitung.de/lueneburg/398902-diskussion-mit-olaf-lies-zur-endlager-suche/

 

 

 

 

Zu Diskutieren sind : Stand der Dinge bei den Standorten : Beverstedt, Börger, Dorum, Westerwanna - Und da DBHD 3.0.3 Endlager erstaunlich viele elektrische Komponenten aufweist, ist die Qualifikation von Elektro Ing. Lies auf einmal ein Vorteil und kein Nachteil mehr - Aber anstatt inhaltlich zu arbeiten wird diskutiert wie eine Jugend, die bisher so gar keinen Beitrag geleistet hat, mehr Macht bei der Verwaltung des Nichts bekommt - Die Republik geht vor die Hunde - Es ist einfach nur traurig zu sehen was aus dem Wirtschafts-Wunderland wurde.

 

 

 

 

 

 

 

 

Hallo, Herr Goebel,

 

anbei das gewünschte Interview mit Herrn Lies
 
 
 

Am Ende will es Keiner haben

 

Umweltminister Olaf Lies sieht Niedersachsen als Anwalt der Bürger bei Endlagersuche

 

 

 

54% der Bundesfläche sind noch in der Atom-Lostrommel, aber 88% der Fläche Niedersachsens. Sollten wir uns darauf einstellen, dass Gorleben von einer niedersächsischen Lösung abgelöst wird ?

Olaf Lies: Zunächst muss man festhalten, dass Niedersachsen in der Atompolitik schon extrem belastet ist, denkt man an die Jahrzehnte währende Auseinandersetzung um Gorleben oder an die Asse und den Schacht Konrad. Aber klar ist: Die Wirtsgesteine Salz, Ton und sogar Granit sind hier vorhanden. Insofern sollten wir sehr genau darauf achten, dass wirklich ergebnisoffen auf einer weißen Landkarte gesucht wird und dass transparent und wissenschaftsbasiert vorgegangen wird. Es darf eben kein Verfahren ablaufen über dem steht: Niedersachsen bietet sich ja geradezu an.

In zehn Jahren will der Bundestag entscheiden. Viele Regionen Deutschlands sind aber längst nicht so gut geologisch untersucht wie etwa Niedersachsens Gas- und Ölregion. Ist der Zeitplan zu optimistisch ?

Zum einen brauchen wir tatsächlich einen ambitionierten Zeitplan. Denn schon jetzt lagern wir hochradioaktives Material in Castoren ein – an den Kernkraftwerken und eben auch im Zwischenlager Gorleben. Von daher dürfen wir nichts in die Länge ziehen. Zum anderen geht in dieser Frage Fachlichkeit vor Geschwindigkeit. Man darf also nicht sagen: Weil mir Informationen über bestimmte Regionen fehlen, bleiben diese außen vor. Sondern umgekehrt gilt: Habe ich keine Infos, kann das Gebiet bei der Suche nach einem Endlager nicht ausgeschlossen werden. Es geht darum, den bestmöglichen Standort zu finden. Das ist ganz wichtig, deshalb werden wir in dem Verfahren auch immer darauf drängen, dass die Regionen in Deutschland, die nicht so gut untersucht wurden, auch unter die Lupe genommen werden.

Aber wenn noch so großflächig untersucht werden muss, ist es dann nicht illusorisch, in zehn Jahren zum Ziel zu kommen ?

Das läuft ja parallel. Die Landesbergämter liefern ihre Daten. Die bestehen nicht nur – wie bei uns – aus einer Vielzahl von Bohrungen, sondern auch aus Daten, die sich aus der geologischen Formation vor Ort ergeben. Dies bietet erste Hinweise. Aber: Nur die Gebiete, die nachgewiesenermaßen nicht geeignet sind, fallen laut Endlagersuchgesetz aus dem Verfahren raus. Das ist der richtige Weg.

Die Landesregierung präsentiert sich – auch in der Veranstaltung am Freitag in Lüneburg – in dem Suchverfahren als Anwältin der Bürger. Was ist Inhalt dieser Rolle ?

Wir gehen in Niedersachsen einen besonderen Weg, deutlich zu unterscheiden von dem der anderen Bundesländer. Und das liegt nach meiner tiefen Überzeugung an der wegen Gorleben, Asse und Konrad hohen Sensibilität in dieser Frage hierzulande. Deshalb begleiten wir als Land mit allen im Landtag vertretenen Fraktionen, also eben nicht nur die Landesregierung allein, den Auswahlprozess kritisch. So wie zu der Veröffentlichung des Zwischenberichts Teilgebiete eine fachliche Begleitung von uns schon im Vorfeld mit den verschiedensten Vertretern stattgefunden hat. So werden wir zur Frage der Lagerung im Ton ein Gutachten liefern, weil es in diesem Punkt zu wenig Erkenntnisse gibt. Zudem liefern wir Informationen für die Bürger, wie jetzt auch in Lüneburg. Außerdem stehen wir den Kommunen und Regionen finanziell zur Seite, die die Meinung von Experten einholen wollen. Deshalb bin ich den Landtagsfraktionen dankbar, dass sie zuletzt 500.000 Euro für diesen Zweck bewilligt haben.
Die Rolle der Anwältin ist nicht ganz einfach, denn wir sind nicht die entscheidende Behörde. Wir wollen aber aktiv sein, damit am Ende der bestmögliche Standort und kein politisch motivierter Standort gefunden wird.

Wie kann das gelingen, wenn Bayern und Sachsen längst das wissenschaftsbasierte Verfahren mit blanker Interessenpolitik unterlaufen ?

Leider war das Thema Endlager immer von ganz besonderer Interessenpolitik begleitet. So war Gorleben eine rein politische Entscheidung. Das war ein riesiger Fehler, den wir nicht noch mal machen dürfen. Das gilt sowohl bezüglich der Entscheidung für einen Standort als auch für die Entscheidungen gegen einen Standort. Politische Interventionen müssen tabu sein, sonst haben wir am Ende nicht den bestmöglichen Standort. Ein Vorgehen, wie es gerade die Bayern an den Tag legen, kann man nur aufs Schärfste kritisieren, denn es gefährdet den gesamten Auswahlprozess. Die Bayern spielen mit dem Feuer. So werden wir der Verantwortung für die nächsten Generationen und weit darüber hinaus nicht gerecht. Denn wir können die Castoren nicht ewig übertägig stehen lassen, sondern müssen als Generation, die jetzt in der Verantwortung steht, sicherstellen, dass wir ein sicheres Endlager finden – und das ist ein Tiefenlager.

Gemessen am Gorlebener Widerstand herrscht im Land noch die Ruhe des Desinteresses. Läuft das Konzept der Transparenz und Bürgerbeteiligung ins Leere, weil Engagement erst bei direkter Betroffenheit entsteht ?

Insgesamt gibt es ein erkennbares Interesse, vor allem natürlich der Gruppen, die sich vorher in Sachen Atomkraft engagiert haben. Aber klar, bei noch 88 Prozent niedersächsischer Flächen im Verfahren scheint deutlich zu sein, dass wir uns noch an einem sehr frühen Punkt des Verfahrens befinden. Deswegen bin ich eher dankbar, dass nicht an jedem potenziellen Standort eine gewaltige Aufregung herrscht. Dafür gibt es nämlich noch keinen Grund. Wir müssen jetzt fachlich breit informieren, gerade auch die jüngere Generation, die sich in zehn bis fünfzehn Jahren mit diesem Thema auseinandersetzen muss. Aber klar ist: Wenn es sich konkretisiert, wenn in Standortregionen obertägig erkundet wird, kommen mehr Emotionen hinzu. Denn eines ist auch klar: Haben will ein solches Endlager am Ende keiner vor der Haustür. Deswegen muss sicher sein, dass der Auswahlprozess transparent und wissenschaftsbasiert war.

Die finnische Lösung, bei der sich ein Land geschlossen für einen Standort entschied, ist ausgeschlossen ?

Das halte ich tatsächlich für ausgeschlossen. Ich war in dieser Sache in Finnland. Dort gibt es ein hohes Vertrauen in die Behörden. Aus meiner Sicht fehlt dort aber etwas die kritische Begleitung durch die Bürger. Die sehr kritische Begleitung in Deutschland birgt aber die Chance, am Ende wirklich den bestmöglichen Standort zu finden. Aber für die Region, die es dann am Ende wird, müssen im Vorfeld Lösungen gefunden werden. Die dürfen wir nicht damit alleine lassen, dass sie Endlager werden.

In Bahlburg hat man nur zufällig erfahren, dass man Modell-Salzstock zur Methodenentwicklung wird. Beleg für Unredlichkeit beim Suchverfahren oder nur für Kinderkrankheiten ?

Tatsächlich hat die Bundesgesellschaft für Endlagerung auch in diesem Punkt Transparenz gewährleistet. Die BGE entwickelt anhand dieses einen Salzstocks Parameter, um alle 30 noch im Verfahren befindlichen miteinander vergleichen zu können. Das Problem war, dass in den vorherigen Präsentationen nicht klar erkennbar war, dass es Modellregionen geben wird, in denen anhand bereits vorhandener Daten Methoden entwickelt werden. Das hatte man nicht ausreichend beschrieben. Da hatte die BGE nicht sauber kommuniziert. In diesem frühen Stadium des Verfahrens war dies aber noch zu korrigieren, deswegen hat sich die BGE auch vor Ort erklärt. Deutlich muss sein: Hinterher gibt es keinen Unterschied, egal, ob man nun die Region war, anhand derer Methoden modelliert wurden oder nicht. Die BGE muss erklären, dass es sichergestellt keine Vorfestlegung gibt.

Kann man nach den Erfahrungen mit der absaufenden Asse noch am Schacht Konrad festhalten oder sollten wir auch noch ein Endlager für schwach- und mittelradioaktive Abfälle suchen ?

Das Standortauswahlgesetz bezieht sich zunächst nur auf hochradioaktive, wärmeentwickelnde Materialien – also die, die jetzt bspw. in den Zwischenlagern in den Castoren stehen. Es sagt aber auch: Wenn wir den Standort gefunden haben, prüfen wir, ob er auch für schwach- und mittelradioaktive Materialien geeignet ist. Zudem ist der Schacht Konrad nur für rund 300.000 Kubikmeter atomaren Abfalls ausgelegt. Das heißt, der auf 200.000 Kubikmeter geschätzte Abfall in der Asse kann dort nicht zusätzlich untergebracht werden. Wir haben also einen dringenden Bedarf, ein weiteres Endlager für schwach und mittelstark strahlendes Material zu finden. Das stellt aber nicht den Schacht Konrad als genehmigtes Endlager in Frage. Unabhängig davon wird gerade eine Überprüfung der sicherheitsrelevanten Anforderungen für den Schacht Konrad durchgeführt.

Wäre eine Volte à la Macron, der zuletzt die Atomkraft zur grünen Energie erklärt hat, in Deutschland denkbar ?

Nein, völlig ausgeschlossen. Es gibt kein Zurück in die Kernenergie. Und das nicht nur, weil wir uns so schwer tun, ein Endlager zu finden. Sondern, weil wir in Deutschland zeigen werden, dass regenerative Energien nachhaltiger, ökologisch sinnvoller, aber vor allem wirtschaftlicher sind als Strom aus Kernenergie.

Das Interview führte Joachim Zießler
 
 
 
 
 
Diskussion an der Leuphana Universität

Sie haben Fragen zur Endlager-Suche?

Am Freitag, 29. Oktober, lädt das Umweltministerium zu einer Podiumsdiskussion in Hörsaal 4 der Leuphana Universität, Universitätsallee 1, ein. Umweltminister Olaf Lies diskutiert mit vier weiteren Gästen die Frage, wie insbesondere junge Menschen in den Prozess der Suche nach einem Atommüllendlager eingebunden werden können.

Sie haben eine Frage, die Sie den Diskussionsteilnehmern gern stellen möchten? Schicken Sie uns Ihre Frage bis Donnerstagabend (28. Oktober), 17 Uhr, an online-redaktion@landeszeitung.de. Sie möchten die Veranstaltung live verfolgen? Sie finden den Live-Stream am Freitag auf unserer Homepage www.landeszeitung.de. lz

Mit freundlichen Grüßen
MEDIENHAUS LÜNEBURG GmbH

Joachim Zießler

Politischer Autor und Lokaljournalist
Landeszeitung für die Lüneburger Heide


https://www.landeszeitung.de

 

 

 

 

 

 

 

 

 

 

 

Sehr geehrter Redakteur Herr Zießler,
 
 
Danke für die Artikel Zusendung.
 
Dieses - Ihr Interview ist gefühlt aber mindestens 3 Jahre alt.
 
 
Es gibt etwas das Niedersachsen richtig macht. - Exzellente
 
3D Daten von der LBEG reduzieren die Gefahr das es wieder
 
zu einem Standort-Auswahl-Unfall kommt ... (siehe Anlage)
 
 
Weil es keine Fach-Journalisten für Endlager gibt, kratzen alle Fragen
 
immer nur an der Oberfläche einer politischen Diskussion - das Neue
 
erfährt die Bevölkerung wenn überhaupt nur über eigene Recherche ...
 
 
Lüneburg liegt zu weit süd-östlich im Zechstein-Meer - und weit ent-
 
fernt von den mächtigen aquatischen Tonstein-Schichten. - Insofern
 
ist das nur eine Story für Sie, wenn Sie mal eine Wand nieder-reissen
 
wollen, hinter der sich neue Technologien befinden, die den Anliegern
 
die Angst vor einem Endlager deutlich mindern können ...
 
 
Wünsche Ihnen einen schönen Abig
 
 
Mit freundlichen Grüssen
 
 
Volker Goebel
 
Dipl.-Ing. Arch.
 
Endlager-Planer
 
 
 
 
 
 
 
 
 
 
 
 
 
 
 
 
 
 
 

Und ein erneuter Blick auf die "Geologie bei Beverstedt"

 

Ing. Goebel übt sich darin Endlager-Geologie nachzuweisen

 

aber auch dieser Versuch ist nicht perfekt - weil er nur auf

 

das Salz focussiert und nicht die Tonstein-Einpackung zeigt

 

Dafür sind in dieser Betrachtung aber weitere wichtige Aspekte enthalten :

 

 

 

 

Castor_Liste_DBHD_Beverstedt.xlsx
Microsoft Excel-Dokument [13.5 KB]
Gesamt-Kosten-Endlagrung_DE_Verfasser_In[...]
Microsoft Excel-Dokument [13.1 KB]

 

 

 

 

 

 

 

 

 

 

 

 

 

 

 

 

Moin - Liebe Beverstedter,

 

 

Wie Ihr seht sind EURE XXL Kompensationen in der Gesamt-Kalkulation drin.

 

 

Es ist besser es freiwillig anzunehmen - Euer Geologie-Schicksal - als es von

 

Berlin, Bonn und Peine aus "reingewürgt" zu bekommen. - Ihr habt es in der

 

Hand. - Eine Industrie-Ansiedlung dieser Dimension gibt es nicht alle Tage ...

 

 

Das Risiko liegt in den Transporten - Wir rüsten Euch für die Flucht vor einem

 

geöffneten Castor aus. Ihr bekommt tatsächlich alle hochwertige ABC Anzüge.

 

Ihr bekommt Strahlen-Hand-Messgeräte und eine jährliche bezahlte Schulung.

 

 

Jeder Neubau macht Lärm und verursacht Bahn- und Strassen-Transporte ...

 

 

Wünsch Euch einen warmen, sorgenfreien Winter - und ich hoffe wir sehen

 

uns bald - Ihr könnt mir ruhig ganz ordentlich Bescheid sagen. Ing. hört zu.

 

Es war die härteste und längste Planung meines Lebens, und ich stehe noch.

 

 

Beste Grüsse aus dem Ruhrgebiet ins Cuxland ? bei Bremer-Voerde.

 

 

Volker Goebel

 

 

 

 

 

 

 

 

 

 

 

 

 

 

 

 

Geophysik im Endlager bei Beverstedt DE

 

 

Temperaturen im Endlager / Geothermische Tiefenstufe

 

Sinken der Einlagerung im warmen, viskosen Salz bis auf

 

das Rotliegende / den Vulkanit - dort ca. + 210 °C = OK !

 

 

Und mit zunehmender Tiefe sind die Auflast-Drücke hoch

 

Da liegt 1 Kubikmeter Gestein auf 1 m3 Gestein etc. etc.

 

Das sind im Wesentlichen Vertikal-Kräfte, aber durch

 

Steinchen / Steine entstehen auch kleinere horizontale

 

Kräfte die auf die Tübbing-Ring Wandung drücken ...

 

 

 

 

 

 

 

 

 

 

>>> Nach Gespräch mit Pastor Bock - Thema Endlager bei Beverstedt

 

 
 
 
Moin - Sehr geehrter Herr Pastor Bock,
 
(Sehr geehrte Beverstedter Gemeinde-Mitglieder)
 
 
Danke sehr für das lange Telefonat. - Sie sind
ein sehr guter Zuhörer, und intelligent, und vor-
sichtig sind Sie auch.
 
Wir haben das Thema Endlager-Geologie bei
Beverstedt und die Gesamt-Lage besprochen.
 
Für den Fall, dass eine Entscheidung für den
Weiterbetrieb von 2 oder 3 KKW in Berlin ge-
troffen wird, ist der "Entsorgungs-Vorsorge-
Nachweis" lt AtG - Atom-Gesetz mit Standort
Beverstedt alternativlos. - In diesem Fall soll
eine Veranstaltung stattfinden, in der Goebel
Ihre Fragen beantwortet und Ihnen vor Ort zur
Verfügung steht. - Tomaten JA - Steine Nein.
 
Wünsche Ihnen Allen ein schönes, ruhiges
Herbst-Wochenende.
 
Mit freundlichen Grüssen
 
Volker Goebel
 
Dipl.-Ing. Arch.
 
Endlager-Planer
 
Tel.: 0178 40 49 665
innerhalb Bürozeiten 
 
info@ing-goebel.com
 
https://www.ing-goebel.de
.
 
 
 
 
 
 
 
 

 

 

 

 

Fragt nicht was Euer Land für Euch tun kann - fragt was Ihr für Euer Land tun könnt ? - Ihr wunderbaren Geologie-Inhaber !

 

Die 8 Mrd. EUR in 4 Tranchen sind kein Treppenwitz sondern das beste Angebot, das man Euch jemals jemand machen wird.

 

Gebt es doch zu - Ihr habt Euer ganzes Leben lang Strom aus Kernenergieanlagen - z. B. aus Brokdorf zur Verfügung gehabt.  

 

 

 

 

 

 

 

 

 

 

 

 

Liebe Beverstedter,

 

Steinsalz - Halit - Das ist das weisse Gold weit unter Ihren Füssen, Strassen, Äckern und Gebäuden

 

Wollte Ihnen das Steinsalz mal zeigen. - DBHD lagert den Salz-Aushub für den Verschluss 10 J. ein.

 

 

 

 

 

 

 

 

 

>>> Weihnachts-Grüsse - Wer will eine Scheune von DBHD ? Salz-Lager Hallen

 

 

 

 
Moin - Sehr geehrte Beverstedter,
 
 
Das Jahr neigt sich dem Ende zu. Sie waren in 2025 ein
 
guter Standort - Alle sind sehr darauf bedacht, dass es nie
 
wieder so einen Quatsch wie damals in Gorleben gab ...
 
 
Um das Salz vernünftig für ca. 5 Jahre zu lagern und
 
keine Abraum-Halden im Regen zu haben - Salz ver-
 
klebt - will DBHD Salz-Lager-Hallen bauen - 100-300.
 
 
Die Bauernhöfe, Gewerbetreibenden mit Platz auf
 
dem Grundstück - und Lager-Firmen dürfen diese
 
Hallen dann behalten. - DBHD erbittet Zusammen-
 
arbeit mit der Super-Welt-Geologie bei Beverstedt.
 
 
Als der Vertreter Ihrer Sicherheits-Interessen und
 
als Vertreter Ihrer Kompensations-Zahlungen 8 Mrd.
 
EUR bin ich DBHD Ihnen als Bauplaner verpflichtet.
 
 
Ich wünsche Ihnen eine schöne Weihnachtszeit und
 
einen guten Übergang ins neue Jahr. 
 
 
Mit freundlichen Grüssen aus dem Ruhrgebiet
 
 
Volker Goebel und Dr. Gerhard Herres
 
Dipl.-Ing. Architektur und Physiker
 
Endlager-Planer 14 Jahre.
 
Deutschland AG
 
 
 
 
 
 
 
 
Lang lebe Bei Beverstedt 
 
 

 

 

 

 

 

 

 

 

 

Weiter zu Börger - - - Weiter zu Winner - - - Weiter zu Jever - - - Weiter zu Gorleben - - - Weiter zu

 

Oberpfalz - - - Weiter zu Dorum - - - Weiter zu Wolfenbüttel - - - Weiter zu Morsleben - - - Weiter zu

 

Bahlburg - - - Weiter zu Bremervörde >>> Bei Beverstedt - - - Weiter zu Salzgitter - - - Startseite

 

 

 

 

 

 

 

Druckversion | Sitemap
Volker Goebel / Dipl.-Ing. / Tel +49 157 546 624 34 DE / info@ing-goebel.com / archi.goebel@gmail.com - Konnte am 08.03.2025 und 14.04.2025 nach 14 Jahren !!! eine vollständige Endlager-Planung nachweisen.